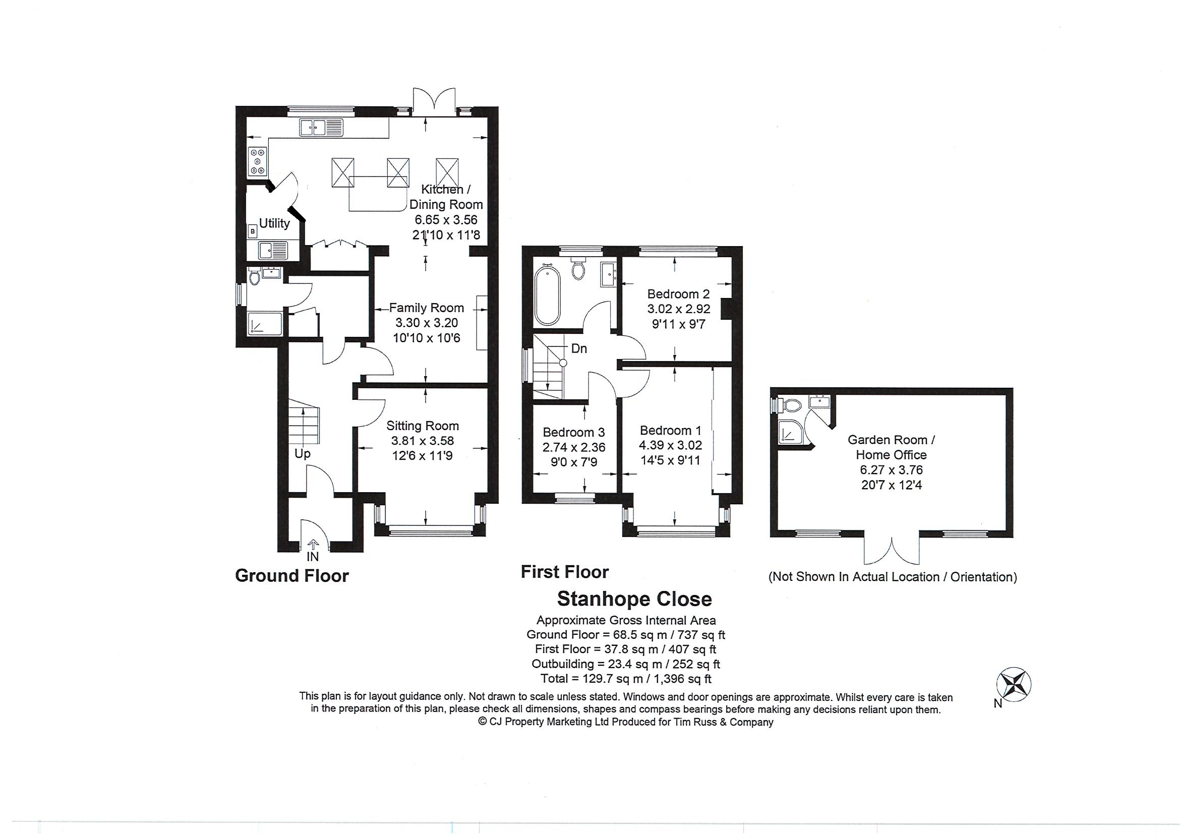
Step into this charming 3-bedroom semi-detached home, perfectly positioned within a highly sought-after Wendover cul-de-sac. The property offers a warm welcome with a generous driveway providing ample off-street parking, and a thoughtfully converted rear section of the garage, creating a versatile additional space – ideal as a home office, gym, or playroom.
Inside, you’ll find a cosy living room and a kitchen with extended dining area, offering great scope for modernisation while already providing the perfect layout for family life and entertaining. The ground floor also includes a convenient W/C, while upstairs there are three well-proportioned bedrooms, a family bathroom, and a boarded loft with ladder and light, providing excellent storage or further potential.
Education options are exceptional, with the property falling within catchment for the renowned grammar schools, in addition to John Colet School, Wendover Junior School, and the ever-popular John Hampden Infant School – all making this an ideal choice for families or those planning for the future.
For those who enjoy the outdoors, the location couldn’t be better – just moments from the Grand Union Canal and Castle Park, offering beautiful walks, cycling routes, and open green spaces right on your doorstep. Wendover High Street, with its independent shops, cafes, and amenities, is also within easy reach, and Wendover train station is just a mile away for convenient commuting.
Outside, a private rear garden provides a lovely space to relax and unwind, with ample room to extend or enhance further (subject to planning). Whether you envision a decked entertaining area, garden studio, or simply a tranquil escape, this home offers endless potential inside and out.
Kitchen
Sitting Room
Conservatory/Dining Room
Sitting Room
Bathroom
Bedroom
Bedroom
Home Office
Bedroom
Sitting Room
