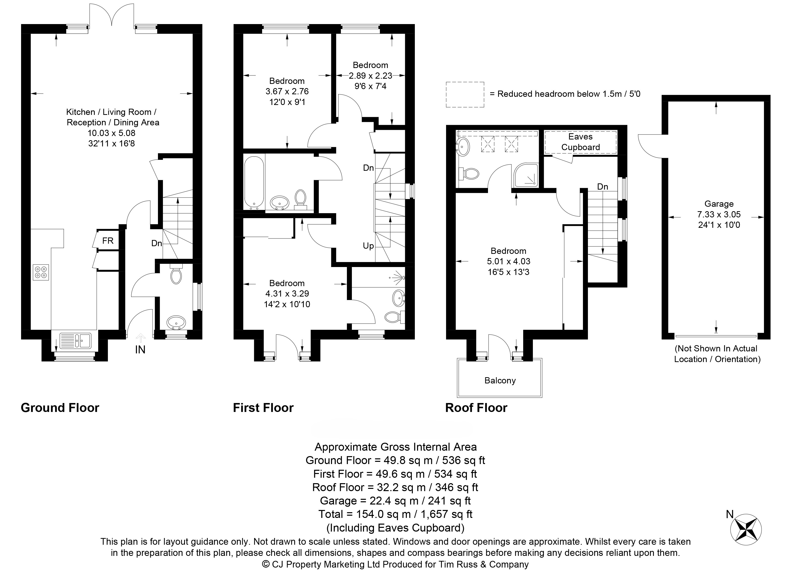
Located within a contemporary development just a short distance from the town centre, this bright and spacious four-bedroom, three-bathroom home is arranged over three well-designed floors, perfectly suited to modern family living.
The ground floor offers an open plan layout with a sleek, high quality kitchen, generous living and dining areas, and direct access to a private, enclosed rear garden that is ideal for relaxing or entertaining.
The first floor comprises three well proportioned bedrooms and two bathrooms, including one en suite, providing flexible and practical living space. The top floor is dedicated to a spacious principal bedroom with its own en suite, creating a peaceful and private retreat.
Finished to a high standard throughout and filled with natural light, the property also benefits from allocated parking. It is conveniently located close to local shops, schools, and transport links, making it a stylish and well connected home
