Set in the heart of Coleshill, one of Buckinghamshire’s most attractive and sought-after villages, this beautifully presented home offers comfort and modern family living. The setting is a huge part of the appeal. Village life here feels calm, established and picturesque, yet both Amersham and Beaconsfield are nearby, making day-to-day life feel easy as well as charming.
Inside, the house has a lovely natural flow and an immediate sense of warmth. It is stylish and elegant without losing that all-important feeling of home. The space has clearly been designed around how people actually want to live.
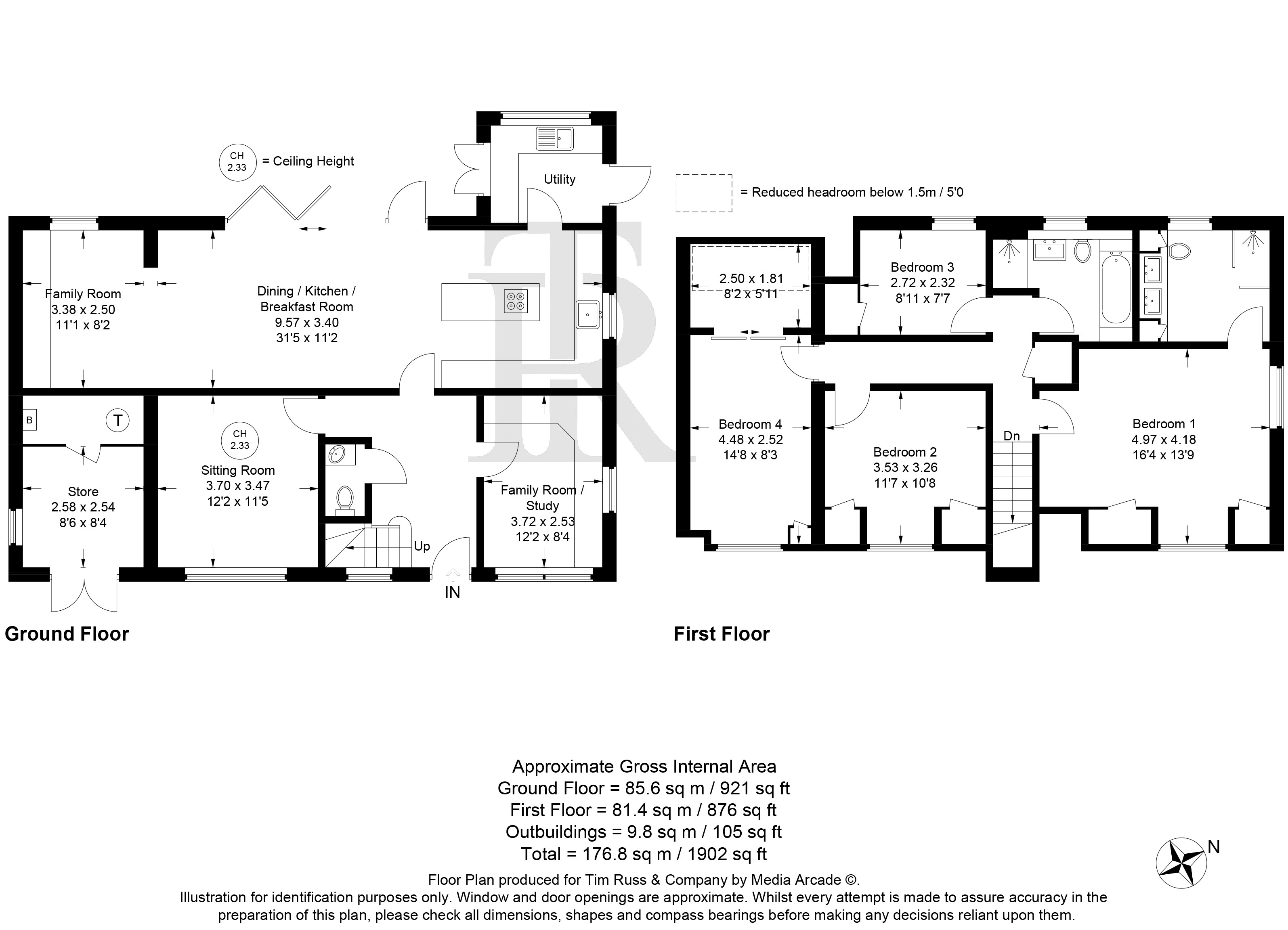
At the centre of it all is the superb kitchen/dining/family room, a room that really earns its place as the heart of the home. It is bright, open and sociable, equally suited to busy weekday mornings, slow family Sundays or a house full of friends spilling out onto the terrace in the summer. The kitchen itself is beautifully hand crafted, with a large oak topped island, generous storage, underfloor heating and a separate utility room.
Elsewhere, the house offers a more peaceful sitting room for quieter evenings, along with a further reception room that gives real flexibility, whether used as a study, snug, playroom or somewhere for older children to disappear to. Offering much needed versatility that’s needed for family living.
Upstairs, the bedrooms are well balanced and inviting, with the principal bedroom enjoying a particularly generous feel. The bath and shower rooms have been finished with real care and have a calm, understated quality that lifts the whole house. They feel considered, contemporary and genuinely luxurious.
This impressive theme continues to the rear garden, private, mature and beautifully arranged, it feels like a natural extension of the living space. A broad terrace creates the perfect spot for outdoor dining and entertaining, while the raised lawn and established planting give the garden a settled, peaceful feel. Dusk till dawn garden lighting to allow the spacious patio to be accessible day and night. Garden is fully enclosed to ensure children and pet safety. It is the kind of outside space that works just as well for family life as it does for relaxed evenings with friends. The spacious driveway provides parking for four vehicles.
