This property sits a few minutes walk from all the local amenities Thame has to offer.
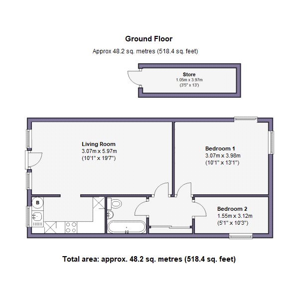
The property consists of a private courtyard area which leads to into the generous size living/Dining room, a fully fitted kitchen with view to the courtyard.
To the rear of the accommodation you will 2 bedrooms with the master benefiting from built in wardrobes. A family bathroom this shower over completes the accommodation.
Outside the property is a private parking space for 1 car and a lock up shed.
Part Furnished
NO Pets
EPC C. Council Tax Band C.
Available NOW
