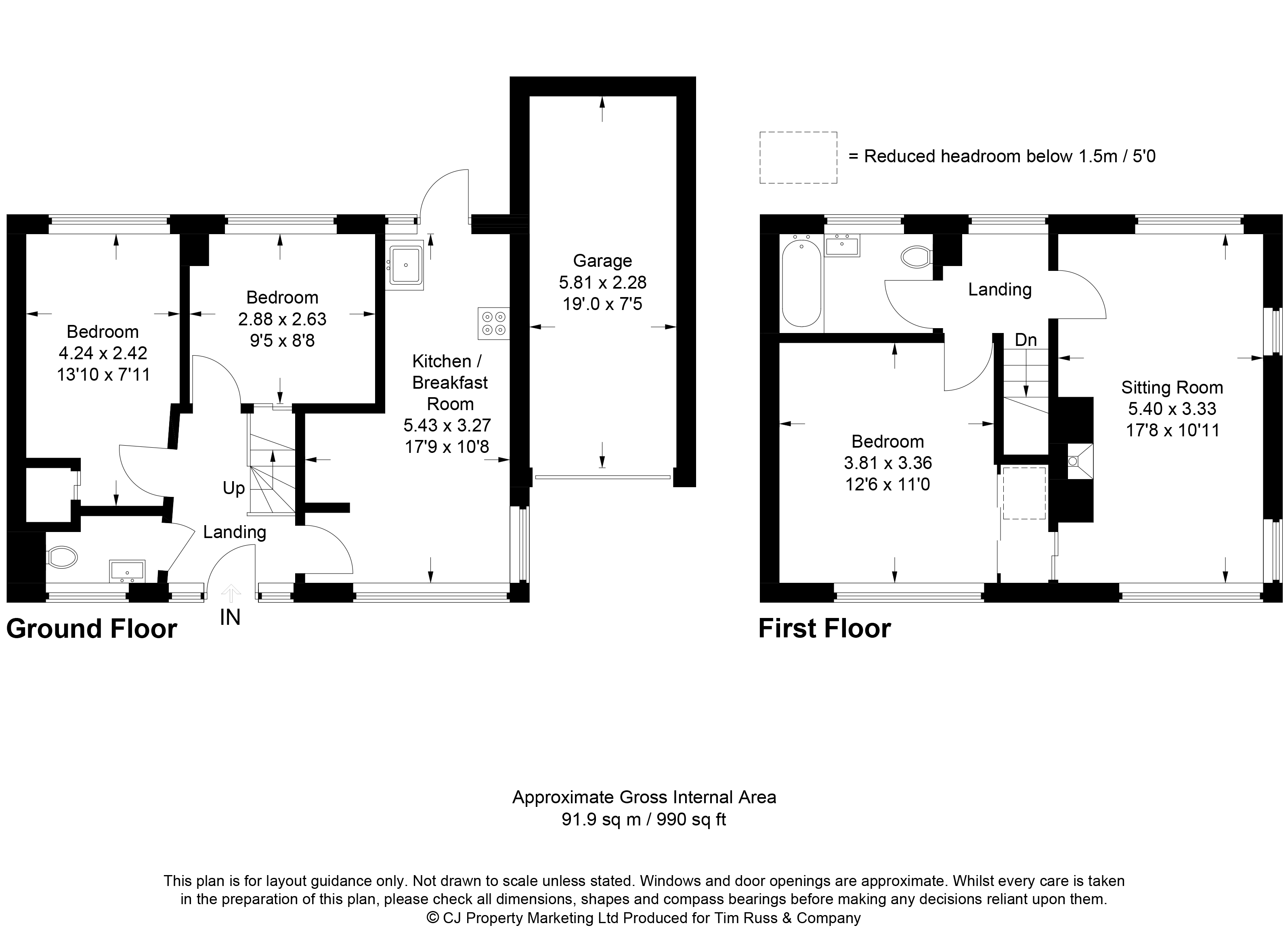
A versatile family home arranged over two floors, enjoying an elevated cul-de-sac position with far-reaching views and offered with no onward chain. The flexible accommodation comprises two ground-floor bedrooms, a dual-aspect kitchen/breakfast room, and a cloakroom. To the first floor is a generous triple-aspect sitting room, a modern fully tiled bathroom, and the principal bedroom. The far-reaching views are particularly enjoyed from both the principal bedroom and the sitting room.
Externally, the property benefits from a garage, driveway parking for up to three vehicles, and a generous rear garden. The house offers excellent scope for modernisation and potential extension, subject to the usual consents.
