A rare opportunity to rent a delightful home in the most wonderful setting on Naphill Common.
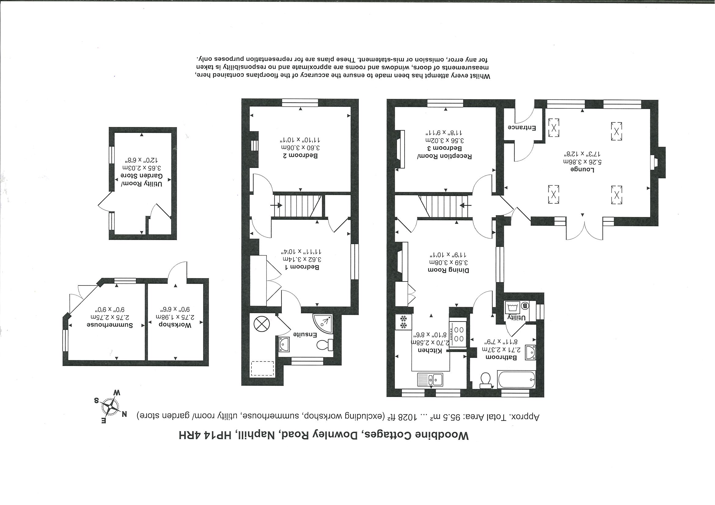
With charm in abundance this beautiful home offers surprisingly spacious accommodation on a generous plot comprising, double aspect sitting room with an attractive vaulted ceiling and a feature fireplace, dining room/kitchen/breakfast room, study/bedroom three and bathroom. To the first floor can be found two double bedrooms one with an en suite. The cottage has undergone a full renovation and viewings are highly recommended.
The front garden is gated with parking for several vehicles. There is a studio and side access. The rear garden is hugely impressive with mature trees and well stocked borders therefore a gardener will be included. A pathway leads down the garden to the second summerhouse and storage shed and then on to the secluded pergola which benefits from a built in BBQ. The rear of the garden gives views over a field. EPC Rating D / Council Tax Band E.
