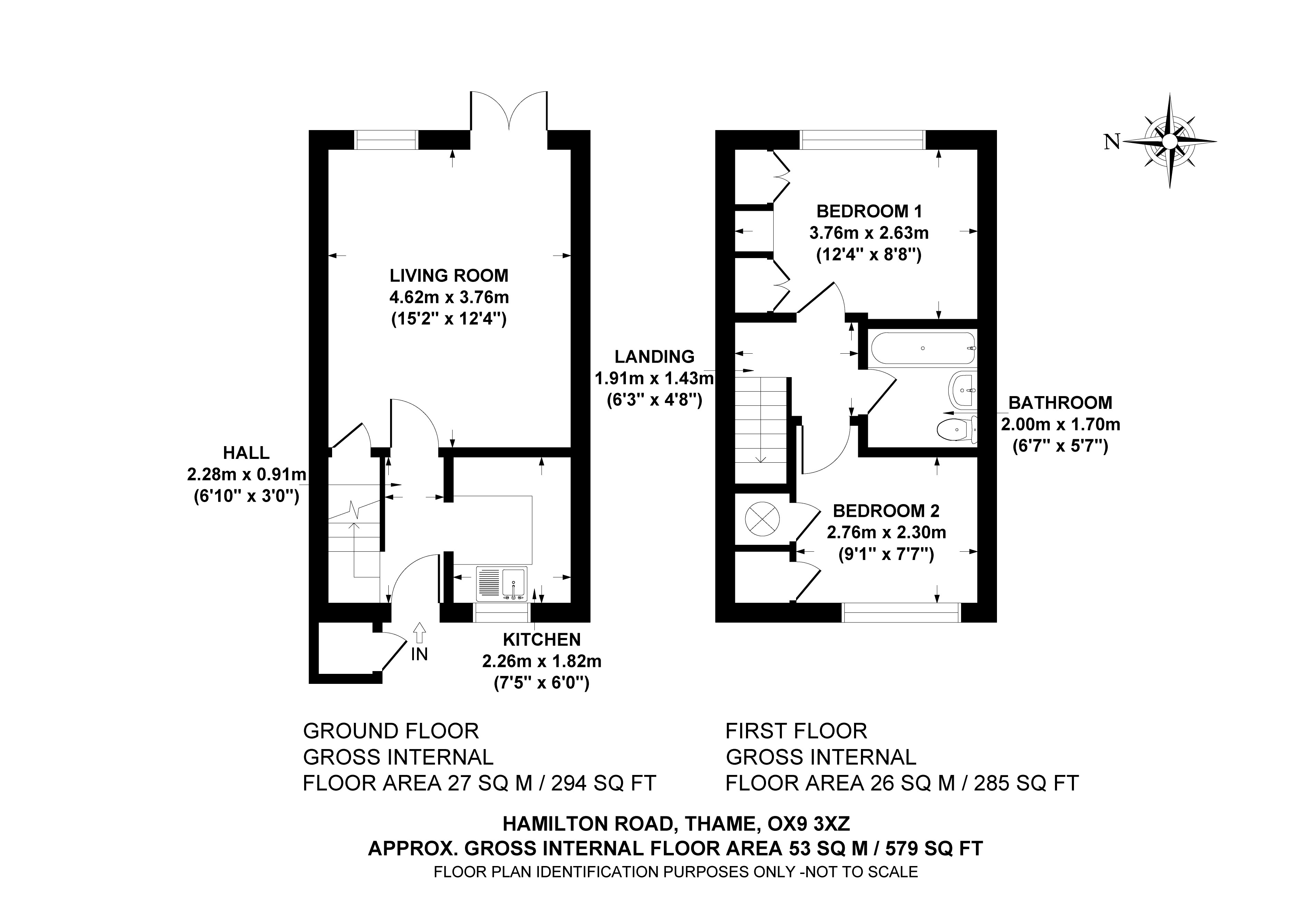
Having underdone refurbishment works including new windows, carpets throughout and redecoration, this mid terrace property is available to rent immediately. The accommodation comprises: Entrance hallway, kitchen, living room with doors onto the garden. On the first floor are two double bedrooms and a bathroom fitted with a white suite. EPC D / Council Tax Band C
